Ers­ter Spa­ten­stich für neu­es Stu­den­ten­wohn­heim am Quer­weg mit Platz für 239 Stu­die­ren­de

Mit dem ersten Spatenstich für ein neues Studentenwohnheim am 10. Dezember rückt ein Wohnheimplatz für weitere Studierende der Universität Paderborn künftig ein Stück näher. Die Wohnanlage am Querweg, Ecke Giselastraße, soll im Mai 2015 fertig werden. Sie bietet dann Platz für 239 Studierende.

„Günstiger Wohnraum ist für Studierende existentiell. Denn Jobben neben dem Studium funktioniert nicht immer“, so Carsten Walther, Geschäftsführer des Studentenwerks und freut sich, dass die Zimmer künftig für 230 Euro pro Monat vermietet werden können. Der Wohnraum komme auch ausländischen Studierenden zugute, die es auf dem privaten Wohnungsmarkt besonders schwer hätten. Die Mini-Appartements sind möbliert. Bett, Schrank, Regal, Schreibtisch und Bürostuhl gehören zum Inventar. Sechs Appartements sind geeignet für Rollstuhlfahrer.

Vizepräsidentin Simone Probst sieht mit dem 15-Millionen-Projekt von Studentenwerk, Universität und Stadt eine Belebung der Südstadt: „Die Studierenden wohnen am Querweg sehr nahe zur Hochschule. Das ist ungeheuer praktisch.“

Beim ersten Spatenstich reiste auch Achim Meyer auf der Heyde, Generalsekretär des Deutschen Studentenwerks, aus Berlin an: „Paderborn liegt mit öffentlich geförderten Wohnungen immer noch drei Prozent unter dem Bundesdurchschnitt. Wir freuen uns, dass sich hier etwas tut“.

Das Wohnheim ist neben Gebäuden am Peter-Hille-Weg und dem Vogeliusweg das fünfte Wohnheim des Studentenwerks Paderborn.
 

Text: Christiane Bernert
 


Presseinformation des Studentenwerks Paderborn

Studentisches Wohnen ganz modern

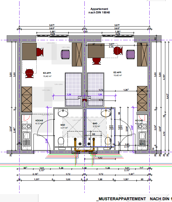
Das Studentenwerk Paderborn feiert den ersten Spatenstich einer Wohnanlage für Studierende am Querweg/Ecke Giselastraße. Auf einer Grundfläche von gut 9.000 qm entstehen campusnah 239 funktionale Wohnplätze für Studierende. Die Zimmer, mit je ca. 23 qm geplant, werden optimal für den studentischen Bedarf ausgestattet sein. Neben Bett, Schrank und Regal ist auch ein Arbeitsplatz mit funktionalem Schreibtisch, Bürostuhl und Internetanbindung vorgesehen. Eine Küche mit Küchenzeile und ein volleingerichtetes Bad komplettieren die Einrichtung. „Für Studierende ist auf den Studienbedarf ausgerichteter Wohnraum besonders wichtig. Wir haben uns daher für diese auch architektonisch interessante Wohnanlage entschieden.“ so Carsten Walther, Geschäftsführer des Studentenwerks Paderborn.

Realisiert wurden die Planungen zur Wohnanlage in enger Zusammenarbeit mit dem Büro der RSK Architekten. So ist zur Energieerzeugung ein Blockheizkraftwerk vorgesehen, das alle 6 Häuser der Anlage über Fernwärme versorgen wird. Ergänzend dient eine Photovoltaik-Anlage zur weiteren Energiegewinnung. Die effiziente Isolierung der Gebäudehülle erreicht im Zusammenspiel mit den zum Teil raumhohen Glasfassaden in 3-Fachverglasung die Richtlinien des Energiesparprogramms eines KfW-Effizienzhaus 55.

„Nachhaltigkeit im Umgang mit unseren Ressourcen ist ein wichtiges Thema für das Studentenwerk Paderborn.“ erläutert Carsten Walther den Ansatz des Energiekonzeptes. Im Sommer dieses Jahres wurden alle weiteren Wohnanlagen in Paderborn auf elektrische Energie aus Wasserkraft umgestellt. Das Studentenwerk gibt die Reduzierung des Ausstoßes von CO2 mit 438 Tonnen jährlich an.

Die Wohnanlage Querweg ist die 5. Wohnanlage für Studierende des Studentenwerks Paderborn in Paderborn. Mit ihr steigt die Versorgungsquote mit öffentlich gefördertem Wohnraum am Standort auf 7 %. Bundesweit liegt sie bei 10 %. An den beiden Standorten der Hochschule Hamm-Lippstadt befinden sich derzeit zwei weitere Anlagen mit jeweils knapp 100 Wohnplätzen in der Fertigstellung.

Die Vermietung der Wohnplätze am Querweg erfolgt voraussichtlich rechtzeitig ab Frühjahr 2015 durch die Wohnraumverwaltung des Studentenwerks Paderborn. Interessierte können sich schon jetzt in eine Warteliste online eintragen: www.studentenwerk-pb.de
 

Daten über die Wohnanlage für Studierende am Querweg/Ecke Giselastraße:

Häuser: 6
Grundstücksgröße: 9.030 qm
Bebaute Fläche: 3.150 qm
Kubikmeter umbauter Raum: 28.286
Wohnfläche: 5.592 qm
Nutzfläche: 2.248 qm
Autostellplätze: 53
Fahrradstellplätze: 104
Investitionsvolumen: 15 Mio. €
Wohnplätze für Studierende: 239 
 

Der <link fileadmin aktuelles pressefotos dezember _blank>Grundriss der Wohnanlage steht auch als PDF-Datei zur Verfügung.

Foto (Studentenwerk Paderborn, Annette Ettingshausen): Der erste Spatenstich beim Studentenwohnheim Querweg ist gemacht: Dafür sorgten (v. li.): Dr. Michael Brinkmeier, Verwaltungsratsvorsitzender des Studentenwerks Paderborn,  Achim Meyer auf der Heyde,
Foto (Studentenwerk Paderborn, Annette Ettingshausen): Der erste Spatenstich beim Studentenwohnheim Querweg ist gemacht: Dafür sorgten (v. li.): Dr. Michael Brinkmeier, Verwaltungsratsvorsitzender des Studentenwerks Paderborn, Achim Meyer auf der Heyde, Generalsekretär des Deutschen Studentenwerks (Berlin), Paderborns Bürgermeister Heinz Paus, Simone Probst, Vizepräsidentin der Universität, Carsten Walther, Geschäftsführer des Studentenwerks Paderborn, und Architekt Carsten Scherhans.